KOLEJNY ETAP INWESTYCJI - NASTĘPNY BUDYNEK W TRAKCIE BUDOWY!!!
DECYDUJĄC SIĘ NA ZAKUP PROPONOWANEJ NIERUCHOMOŚCI KLIENT KUPUJĄCY NIE PŁACI PROWIZJI DLA BIURA !!!
Zapraszamy do zapoznania się z fantastyczną ofertą mieszkań w stanie deweloperskim w Koszalinie.
Przewidziany termin zakończenia budowy tego budynku przypada na koniec roku 2025 r, zaś klucze będzie można otrzymać w pierwszym kwartale roku 2026.
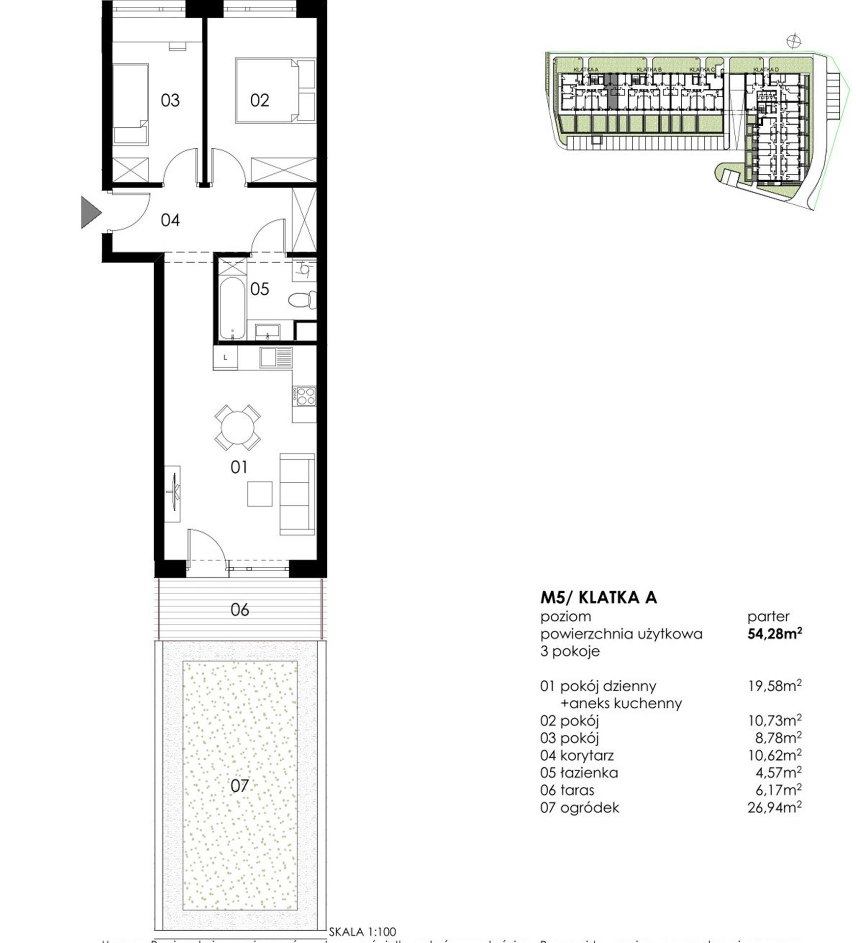
Ta oferta dotyczy mieszkania 3 - pokojowego na parterze o powierzchni 54,28m2 z ogródkiem w cenie 13 500zł, którą należy doliczyć do ceny mieszkania co daje razem: 447 740zł brutto.
Dodatkowo istnieje możliwość zakupienia:
komórki lokatorskiej w cenie 5 000 zł za 1m2, jak również:
miejsca postojowego w garażu podziemnym w cenie 35 000 zł (winda dociera do poziomu -1, to duże udogodnienie), lub
miejsca postojowego zewnętrznego w cenie 20 000 zł
W niektórych ofertach zakup komórki lokatorskiej jest obowiązkowy - w razie zainteresowania uzyskaniem bardziej szczegółowych informacji zapraszamy do kontaktu.
!UWAGA!
Ceny widoczne w naszych ogłoszeniach są identyczne jak u Dewelopera !!!
DODATKOWO KLIENT KUPUJĄCY ZWOLNIONY JEST Z PODATKU PCC W WYSOKOŚCI 2%!!!
W sercu rozwijającej się inwestycji powstaje nowy, nowoczesny budynek, który zachwyca starannością wykonania oraz zastosowaniem materiałów najwyższej jakości. Proponowane mieszkania są sprzedawane w stanie deweloperskim, co daje przyszłym właścicielom pełną swobodę w aranżacji wnętrz zgodnie z ich indywidualnymi potrzebami i gustami.
Na parterze znajdują się lokale z przynależnymi ogródkami, co czyni je idealnym wyborem dla osób ceniących sobie dostęp do przestrzeni zielonej – koszt ogródków wynosi średnio 500 zł za m2. Na wyższych kondygnacjach oferujemy mieszkania z balkonami lub loggiami, a część z nich dysponuje zarówno balkonami, jak i loggiami, co umożliwia swobodne korzystanie z dodatkowego miejsca na świeżym powietrzu.
Budynek wyposażony jest w windę, co sprawia, że dostęp do poszczególnych pięter jest wygodny i komfortowy.
Dzięki różnorodnym propozycjom lokalowym, inwestycja ta zapewnia szeroki wachlarz możliwości dla tych, którzy pragną znaleźć swoje wymarzone miejsce do życia.
Lokalizacja osiedla jest wręcz idealna, łącząc bliskość centrum miasta ze spokojem i harmonią, które panują w jego okolicy.
To doskonała propozycja zarówno dla osób szukających własnego lokum, jak i dla inwestorów, którzy pragną nabyć nieruchomość z myślą o wynajmie. Mieszkanie położone w tej atrakcyjnej lokalizacji staje się świetnym punktem wypadowym nad nasze piękne morze, oferując wygodny i szybki dojazd.
Nowo wybudowane drogi szybkiego ruchu umożliwiają łatwe i sprawne przemieszczanie się, co czyni to miejsce jeszcze bardziej pożądanym. Dzięki konkurencyjnej cenie nieruchomości, każdy może skorzystać z możliwości zakupu, które otwierają drzwi do relaksu nad brzegiem morza.
To idealna okazja dla tych, którzy marzą o posiadaniu własnego miejsca wakacyjnego!
Serdecznie zapraszamy!
